Broken Tap Disintegration (“Tap Burner”)
a

 

Overview:

 

One day I broke a #10-24 tap in some steel flat stock. I had removed broken drill bits before by using an acid etch, but I had never removed a broken tap. So I decided to make a broken tap remover for small taps.

 

This document presents a conceptual sketch for a broken tap disintegrator that is intended for small broken taps, specifically 10-24 thread, or thereabouts. It uses a longitudinally vibrating 1/16” solid tungsten electrode which is powered with about 5 to 10 amps @ 12 volts (AC preferred). The tiny cross section may require multiple passes even on a 10-24 tap. In the initial test, about 15 minutes was required to penetrate a broken 10-24 tap in a 3/16” steel plate.

 

The vibration generator comes from a broken ACE Hardware brand “Professional Electric Engraver”. The driven electrode is electrically isolated from the disintegrator metal case, which in turn is safety grounded via the AC power cord. The electrode is connected via a simple alligator clip positioned on the vibrating electrode below the nylon guide block. The power source was a 12v battery charger in parallel with a small 3Ahr battery. AWG #14 stranded wire was used for the connections. During use, a drill press quill is used to slowly feed the disintegrator with the vibrating electrode into the work. The work has DI water flowing across (or through) the active area to remove particles and cool the electrode.

 

The pictures shown below are of a test version, not the final unit.

 

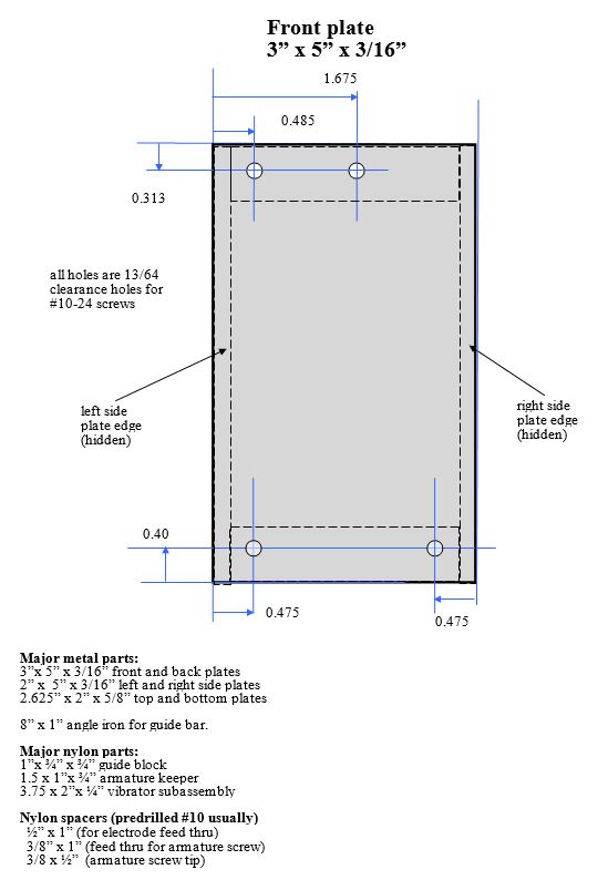
Note: Drawings have not been rechecked for accuracy, missing dimensions, etc.

  

 

The tap disintegrator is chucked in a drill press for rigidity and depth control. (The drill press is OFF.)

DI water flows across the broken tap inside a foam dam. Alligator clips are used for the electrical connection to a 12 VDC, 10 amp supply. The vibrator coil connects to a wall outlet (preferably one with a GFI)

A 1/8" ID drain tube proved to be too small (had too much capillary resistance) and was removed.

The disintegrator burned a fairly clean, round hole through the tap. Remains of the tap were broken out with a screw extractor (which was otherwise unable to extract the tap). Then the threads were cleaned up with a new tap.  The results were satisfactory. (if they had not been, I would have welded the hole shut and then redrilled and retapped it.)

I was surprised that the screw extractor was very scratched up during this operation. I did not know it at the time, but Electrical Discharge Machining (EDM) produces a very thin layer (a few ten-thousandths) of extremely hard, brittle material.  "Superficial hardness tests have been performed on as-cut EDM surfaces and it is often found to be equivalent to a 70 Rc hardness or higher. This explains why tools shaped by EDM generally will wear an extraordinarily long time in comparison to tools made of conventional heat treated steel" (Heat Treatment, Selection, and Applicaton of Tool Steels, William E. Bryson (2009) ).  See also http://www.cladtechnologies.com/articles/hardness%20vs.%20wear/hardness.htm

 There is another way to make very thin, hard layers carbon in steel. See "An Aside" directly below.

 

 

 

 

 

 

 

 

 

 

 

 

 

 

 

 

 

 

 

 

 

 

 

 

 

 

 

 

 

 

 

 

 

 

 

 
An Aside:  A bit of trivia about  hardening thin objects by induction hardening.

Very thin sections of watch gears and edges of razor blades can be hardened to about  68 Rockwell C by microinduction hardening.  Equipment used can be very sophisticated or something as simple as a circuit with a capacitor, spark gap, and a tiny induction coil  (High Speed Pulse Technology, Frank B. A. Frungel (1965) Vol I, pages 368, 372 )

 

 

 

 

 

 

 

 

 

 

 

 

 

 

 

 

 

 

 

 

 

 

 

 

 

Close-up of #10-24 broken tap with center burned out by tap disintegrator using 1/16" tungsten electrode, 12 volts DC @10 amps. DI water flows across the tap, top to bottom in photo. The water is confined by a foam dam with a drain outlet at the bottom of the picture.

 

Same close-up but backlighted. Hole is fairly clean and round. Tap remains have not yet been broken out.

Hole after clean up.

 

 

 

 

 

 

 

 

 

 

 

 

 

 

 

 

 

 

 

 


On line Refs:
Commercial disintegrators for larger taps use a hollow molybdenum tube instead of a solid electrode, and have DI water flowing thru it during a disintegration operation. These run at 100-150 amps and can disintegrate large taps in a couple of minutes without damaging nearby threads in the substrate.
  

http://www.youtube.com/watch?v=YbeKxFBZrF8

http://www.youtube.com/watch?v=y9PzvVUBp-M

http://www.youtube.com/watch?v=2W4xZYRkWGo

Reliable EDM http://www.youtube.com/watch?v=eaeEn1Gs4aQ , http://ReliableEDM.com

 

 

 

 

 

 


 

 

 

g